Duoi hinh bat chu

        Bất động sản >> Chung cư
Soạn tin:  WR 1240490 gửi 8336 để đăng tin VIP thêm 30 ngày (3.000VNĐ/sms)
Soạn tin:  WR 1240490 gửi 8536 để đăng tin Siêu VIP thêm 10 ngày (5.000VNĐ/sms)
Đăng lúc: 15:15:22, ngày 21/08/2013 - Hà Nội
Đã xem: 0 . Mã Tin: 1240490
Điện thoại:
Người đăng:

Chung cư gần Trung Hòa Nhân Chính giá từ 19,6 tr m2

CHUNG CƯ TÂY HÀ TOWER

Chung cư Tây Hà Tower mở bán chính thức giá chỉ từ 19,6 tr/m2 cùng rất nhiều ưu đãi !

 

Chung cư Tây Hà Tower cách Nhà Văn Hóa Quận Thanh Xuân 400m, cách Siêu Thị Big C 1,3km

Chủ Đầu Tư: Công Ty CP Đầu Tư Xây Dựng Tây Hà

* Tặng ngay 0,2 triệu/m2 cho KH đăng ký mua sớm nhất

* Hỗ trợ vay vốn NH lên tới 70% lãi suất 8%/năm

* Giá chỉ từ 19,6tr/m2 ( đã gồm VAT )

Hotline : 094 6666 253

 

Chung cư Tây Hà Tower phối cảnh

 

I. Vị Trí

Chung Cư Tây Hà Tower nằm tại mặt đường Lê Văn Lương gần ngay đầu ngã tư Lê Văn Lương - Khuất Duy Tiến 350m

Các mặt tiếp giáp của chung cư Tây Hà 

-  Hướng bắc – Tây Bắc tiếp cận đường Lê văn lương có lộ giới 40m. giáp dự án khách sạn 5 sao Nam Cường và công viên hồ mễ trì.

-   Hướng Nam – Tây Nam tiếp cận đường quy hoạch liên khu có lộ giới 20m, giáp khu đát cây xanh công cộng dự án nhà ở cao tầng Nam Cường

-    Hướng Đông- Đông Nam tiếp cận trục đường nội bộ có lộ giới 25m, giáp khu dự án nhà ở thấp Nam Cường

 

-     Hướng Đông – Đông Bắc tiếp cận trục đường nội bộ có lộ giới 11,5m.giáp dự án nhà ở cao tầng Bắc Hà .

 

 

II. Q.uy Mô Dự Án

1.Tòa nhà cao chung cư Tây Hà Tower 25 tầng, trong đó có 2 tầng hầm rộng rãi, 5 tầng thương mại và 6 thang máy

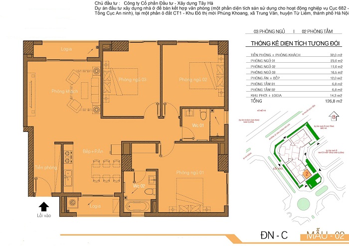
2. Các loại diện tích: 89m-115m- 122m- 127m2

3. Tiến Độ Xây Dựng: Chung cư Tây Hà Tower đang xây đến tầng 12/25  ( tháng 5/2013 )

4. Bàn Giao: Chung cư Tây Hà Tower dự kiến bàn giao Quý III năm 2014

5. Đã có hợp đồng mua bán, giấy tờ pháp lý đầy đủ

III. LIÊN KẾT VÙNG

Chung Cư Tây Hà Tower Cách siêu thị Big C chỉ 1,3km

Gần Trung Tâm Hội Nghị Quốc Gia

Gần trường THPT Trung Văn, Trường Amsterdam, Trường Nhân Chính …

Cách đường cao tốc trên cao chỉ 300m

 

Liên kế vùng chung cư Tây Hà
 
THIẾT KẾ CHUNG CƯ TÂY HÀ 
 
 

 

 

 

 

 

 

 

 

IV. GÍA BÁN & TIẾN ĐỘ THANH TOÁN

- Giá bán Chung cư Tây Hà Tower từ 19,6 tr/m2 (bao gồm VAT)
- Tiến độ đóng tiền Chung cư Tây Hà Tower :
*) Đợt 1: 20% (Ký hợp đồng mua bán)
*) Đợt 2: 10% (sau 30 ngày)
*) Đợt 3: 15% (xong sàn 15)
*) Đợt 4: 15% (xong sàn 20)
*) Đợt 5: 10% (xong sàn 25)
*) Đợt 6: 30% (khi bàn giao nhà)
Hình ảnh tiến độ thực tế của Chung Cư Tây Hà Tower ( tháng 05/2013 )


 
 
V. Ý DO BẠN NÊN CHỌN CHUNG CƯ TÂY HÀ
+ Chung Cư Tây Hà Nằm trên tuyến đường Lê Văn Lương là tuyến đường phát triển rất sầm uất hiện nay với rất nhiều khu đô thị, chung cư đã và đang đi vào hoạt đông
+ Ngay đối diện là Hồ Điều Hòa Mễ Trì lớn làm cho không khí quanh nhà bạn thật mát mẻ và sảng khoái
+ Diện tích Chung cư Tây Hà Tower đa dạng: 89m-115m- 122m- 127m2 Giá cả hợp lí chỉ với 1,8 tỷ /căn
+ Ngân hàng VP Bank, Liên Việt Poster Bank, MB Bank hỗ trợ vay vốn 70% giá trị căn hộ Chung cư Tây Hà Tower trong 15 năm với lãi suất ưu đãi 8% năm đầu
+ Giao thông vô cùng thuận tiện
+ Gần với cầu vượt trên cao thuận tiện đi các tỉnh BẮC - NAM
TẶNG NGAY 0,2 TRIỆU/M2 CHO 25 KHÁCH HÀNG LIÊN HỆ ĐẶT CHỖ SỚM NHẤT VỚI CHÚNG TÔI. 
 
HOTLINE CHỦ ĐẦU TƯ : 098 9999 624 – 094 6666 253

comments Thông tin phản hồi (0)


Off Telex VNI VIQR




Gửi tin nhắn tới:
Off Telex VNI VIQR



Off Telex VNI VIQR

CÁC TIN CÙNG DANH MỤC
app rao vat
appshop.vn
logo

Copyright © 2011 WebRaovat.vn. All rights reserved